60 Hiltz Avenue
Toronto, CA M4L 2N5
$2,799,000
4
5
2,000
1

















































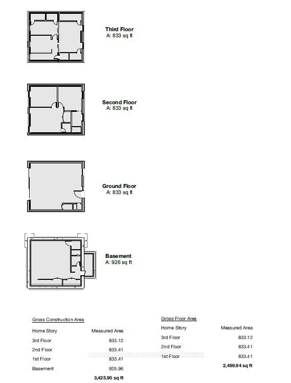
Featured by BlogTO as "Like Living in the Future." 60 Hiltz is a custom-built, all-electric home on a wide, quiet, tree-lined street steps from Greenwood Park and Queen East. 3+1 bed, 5 bath, 7 Juliet balconies, covered carport with EV rough-in, over 3,000 sf. Step inside to ~10' ceilings and a bright open kitchen-dining-family room anchored by a honed marble fireplace. Scavolini kitchen with 8-foot quartz island, Gaggenau fridge and induction cooktop, Monogram wall oven, Bosch dishwasher, Faber hood. Up to the second floor: two large bedrooms with two full baths and Scavolini closets, dedicated office, and laundry. The third-floor primary suite opens to CN Tower views, 5-pc ensuite with stone soaking tub, and gorgeous dressing area with custom millwork. Below grade: open-concept 900+ sf level with full bath and 8-foot ceilings - guest suite, media room, gym, or play space. Built for health and comfort: all-electric means zero combustion, no indoor air pollution. HEPA-filtered fresh air 24/7 via backed-up ERV. Passive House-certified triple-pane floor-to-ceiling windows flood every room with light and retain 3X more heat than standard glass. Heated floors throughout. Motorized Hunter Douglas blinds. Built to save: High Performance building envelope and cold-climate heat pump cuts heating and cooling costs vs. code-built homes. German heat pump hot water tank uses 3X less energy than conventional. 16 solar panels power the home and sell surplus to the grid. Rare islanding keeps solar running during outages. 20 kWh battery backs up sump pump, fridge, ERV, WiFi, lighting, HWT, and plug loads. Carport ready for 10 more panels. Built to protect: Bone Structure steel frame, non-combustible brick and metal exterior, laminated security glazing, 7-point locking windows, steel security door. Climate-resilient and break-in resistant. You cannot replicate this build at this price. Riverdale CI and Duke of Connaught catchments. 10 min by bike to the Beaches.
Interior Features
Exterior Features
Property Facts
Lot & Parking
Utilities & Systems
Contact Joe, Doug & Randal for more information or to schedule a viewing.
MLS #: E12965658
Listed: April 7, 2026